

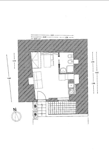
Il progetto nasce con l'intenzione di modificare i caratteri estetici e strutturali dell'immobile, sia all'interno che all'esterno, trasformandolo da rudere ad abitazione. L'immobile presentava un grosso problema di muffa, creata da umidità di risalita, che è stato risolto con l'utilizzo di particolari prodotti creati appositamente per questo tipo di problematiche. La ristrutturazione grazie a piccoli ma mirati interventi è riuscita, in pochi metri quadrati, a ricavare uno spazio abitabile che comprende un bagno, una piccola cucina, e un soppalco per la zona notte. All'esterno invece è stata completamente riqualificata la facciata dell'immobile stesso con annesso giardino ricavato spianando e recintando il terreno circostante in modo da consentire il calpestio.
